Produção industrializada que reduz drasticamente o tempo de obra e acelera a instalação no local.
Menos desperdício, menos retrabalho e melhor controle de custos.
Redução de resíduos, consumo consciente de recursos e menor impacto ambiental.
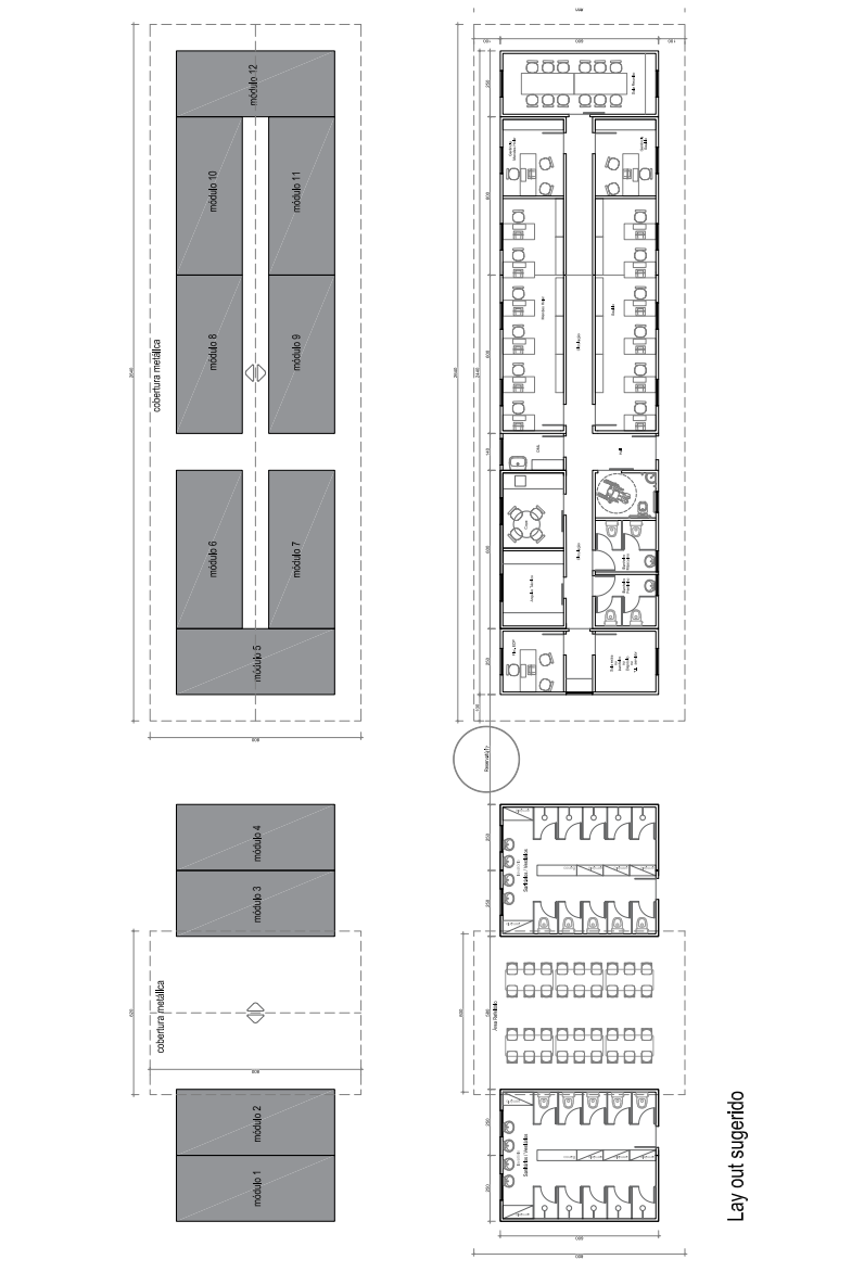
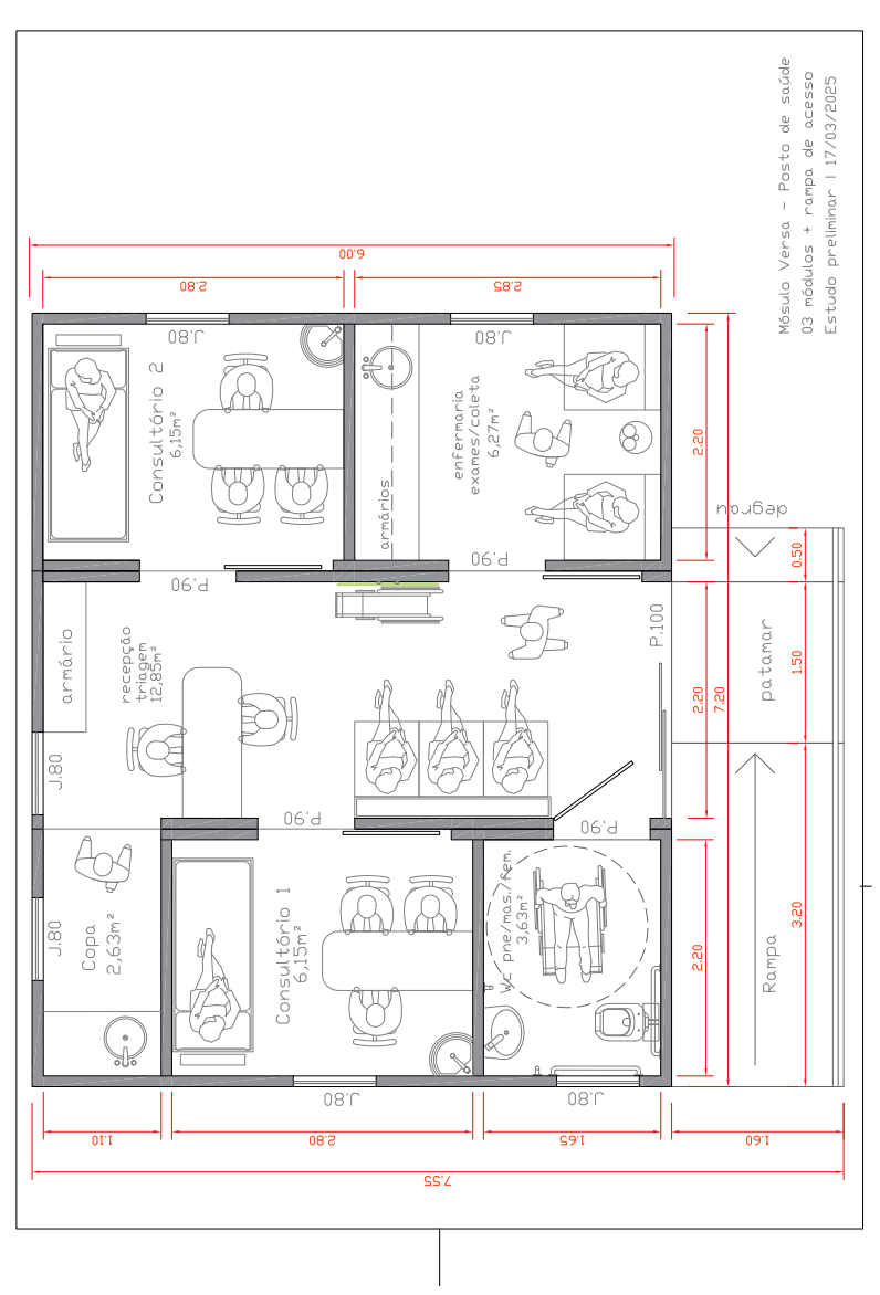
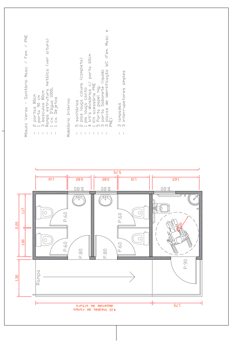
Módulo Habitacional e Comercial com Estrutura Permanente.
O Módulo Versa Construtivo é a solução ideal para quem busca construção modular resistente, confortável e pronta para uso imediato. Indicado para residências fixas, comércios, escritórios, escolas e empreendimentos públicos.
Projetado com alto padrão estrutural, oferece durabilidade superior e excelente desempenho termoacústico.
Principais diferenciais:
✔ Estrutura em aço galvanizado com pintura eletrostática de alta resistência
✔ Placas sanduíche com isolamento termoacústico de alto desempenho
✔ Piso cimentício reforçado e cobertura com captação de água pluvial
✔ Portas corta-fogo e janelas amplas com vidro temperado
✔ Instalação elétrica completa com pontos elétricos, USB e luminárias inclusas
Ideal para quem busca módulo habitacional fixo com longa vida útil e baixa manutenção.
Módulo Modular Dobrável para Locação e Projetos Temporários.
O Módulo Versa Flex é uma solução em módulo modular móvel, projetado para oferecer mobilidade, rapidez na instalação e excelente custo-benefício.
Perfeito para alojamentos temporários, escritórios móveis, eventos, obras e soluções emergenciais.
Principais vantagens:
✔ Estrutura dobrável e pré-montada para transporte otimizado
✔ Sistema termoacústico com placas sanduíche de alta performance
✔ Estrutura em aço zincado com pintura eletrostática
✔ Janelas com ventilação e proteção contra insetos
✔ Instalação elétrica completa com luminárias e disjuntores
Ideal para quem precisa de locação de módulos com agilidade e praticidade.
Cada projeto executado pela Módulo Versa reforça nosso compromisso com qualidade, prazo e excelência em construção modular. Nossos módulos habitacionais e comerciais já atendem empresas, obras, eventos e projetos permanentes em diferentes regiões, sempre com alto padrão estrutural e acabamento profissional.
Mais agilidade | Mais economia | Mais eficiência
Quando você escolhe a Módulo Versa, escolhe segurança e previsibilidade.






(28) 99988-8137 / 99938-7288 / 99912-3067
Avenida Fiorante Cipriano 384/514 - Parque Central, Cachoeiro de Itapemirim, ES
faleconosco
@moduloversa.com.br